Plans 2D à partir de scan 3D
Transformez vos numérisations 3D en plans exploitables : coupes, élévations de façades, plans de masse et relevés de cotes, livrés en DWG ou PDF.

Du nuage de points au plan exploitable
Des plans précis, sans relevé manuel
Nous produisons des plans 2D directement exploitables (coupes, élévations de façades, plans de masse, relevés de cotes) à partir d'une numérisation 3D de votre bâtiment ou terrain. Vous recevez des fichiers DWG ou PDF prêts à intégrer dans votre flux de travail.
Le processus commence par un relevé photogrammétrique par drone et/ou un scan LiDAR terrestre. Les données sont traitées pour générer un nuage de points dense et colorisé, à partir duquel nous extrayons les plans dont vous avez besoin. Selon votre projet, nous réalisons la vectorisation complète en interne ou nous vous livrons le nuage de points calibré pour que vous puissiez vectoriser vous-même dans votre logiciel de DAO.
Cette méthode évite les campagnes de relevé manuel longues et coûteuses, tout en offrant une précision centimétrique. Elle est particulièrement adaptée aux bâtiments existants dont les plans d'origine sont incomplets, perdus ou obsolètes.
À noter : la production de plans d'un bâtiment existant (plan d'intérieur, plan de masse, élévations) n'est pas réservée aux géomètres-experts, sauf lorsqu'elle touche aux limites de propriété. On fait le point dans notre article sur le rôle du géomètre-expert.
Livrables
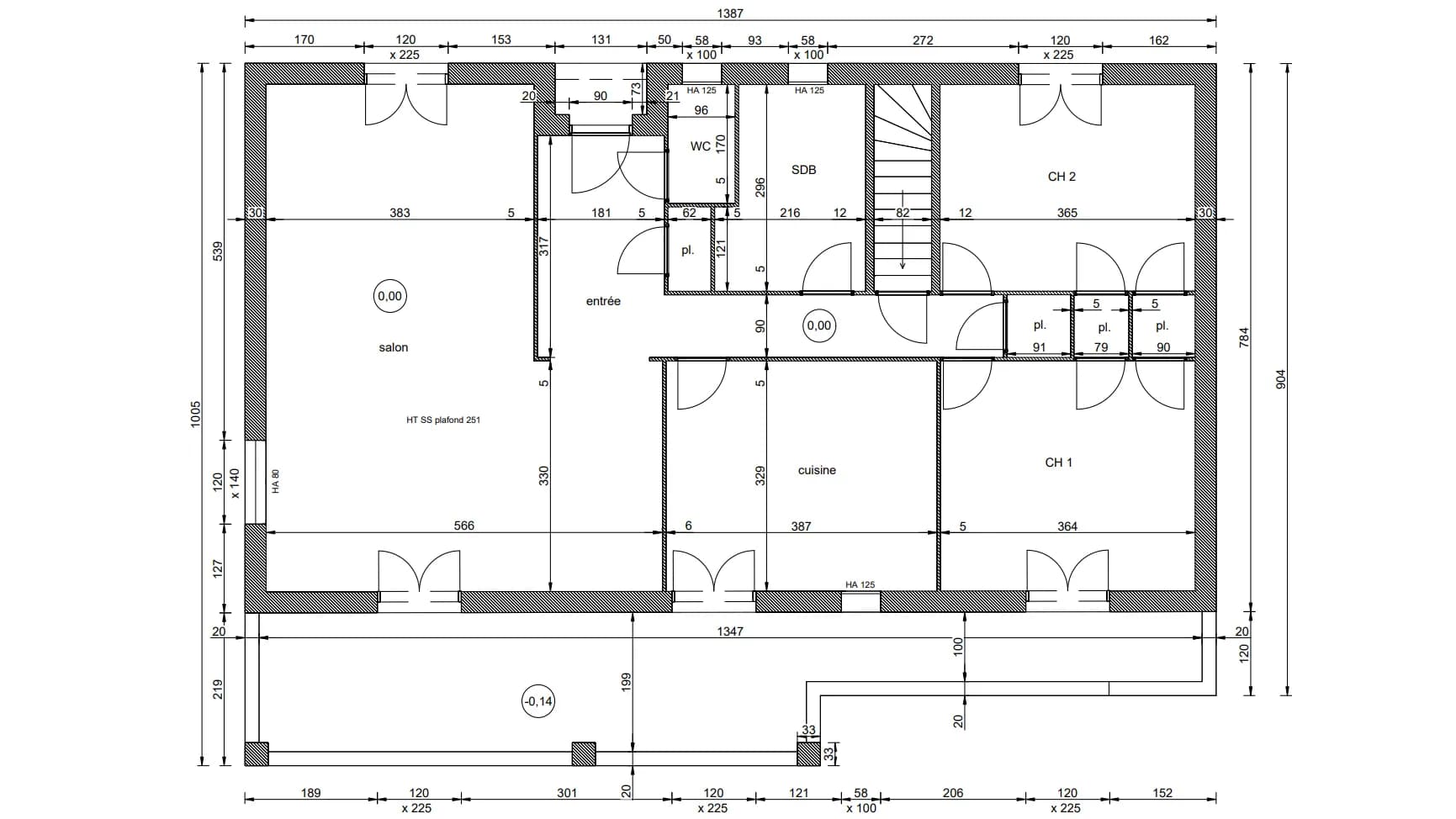
Quels plans pouvons-nous produire ?
Chaque livrable est extrait du même jeu de données 3D. Une seule acquisition sur site suffit pour produire l'ensemble des plans nécessaires.
- Plans de masse et plans au sol
- Vues en plan de l'emprise au sol, avec cotations, limites parcellaires et éléments de contexte. Idéal pour les dossiers de permis de construire ou les études de faisabilité.
- Coupes et élévations de façades
- Profils verticaux et vues de façades cotées, extraits du nuage de points. Permet de documenter les hauteurs, les niveaux, les retraits et les détails architecturaux avec précision.
- Plans de toiture
- Vues en plan des toitures avec pentes, arêtiers, noues et éléments techniques (cheminées, fenêtres de toit, panneaux). Particulièrement utile pour les couvreurs, charpentiers et études de rénovation.
- Relevé de cotes et métrés
- Extraction de dimensions précises (longueurs, surfaces, volumes) directement depuis le modèle 3D. Ces données servent de base pour le chiffrage, les métrés ou les études quantitatives.
- Nuage de points calibré (livraison brute)
- Si vous préférez vectoriser vous-même dans votre propre logiciel de DAO (AutoCAD, ArchiCAD, Revit…), nous vous livrons le nuage de points dense, colorisé et géoréférencé, prêt à l'import. Formats : E57, LAS, LAZ, PLY.
Méthodologie
Du terrain au plan en 4 étapes
- 1
Cadrage du besoin
Périmètre, formats, niveau de détail
Nous définissons ensemble les plans attendus, le format de livraison (DWG, PDF, nuage de points brut) et le niveau de détail requis. Cette étape permet d'adapter la méthode d'acquisition au résultat final.

- 2
Acquisition sur site
Drone, LiDAR, photogrammétrie
Nous réalisons le relevé sur site par photogrammétrie aérienne (drone) et/ou terrestre (LiDAR), selon la configuration du bâtiment. L'intervention est rapide, légère et ne nécessite ni échafaudage ni nacelle.

- 3
Traitement et extraction
Nuage de points, orthophotos, vectorisation
Les données brutes sont assemblées en un nuage de points dense et colorisé. Nous en extrayons les orthophotographies, les coupes et les profils nécessaires. Si la vectorisation est prévue, nous dessinons les plans dans un logiciel de DAO pour produire des fichiers directement exploitables.

- 4
Livraison des plans
DWG, PDF, nuage de points
Vous recevez vos plans dans les formats convenus, prêts à être intégrés dans votre flux de travail. Les fichiers sont accompagnés d'une note méthodologique précisant les conditions d'acquisition et la précision obtenue.


Avantages concrets
Pourquoi produire vos plans à partir d'un scan 3D ?
Par rapport à un relevé manuel classique, la production de plans depuis un scan 3D présente des avantages significatifs en termes de précision, de rapidité et de coût.
- Précision centimétrique sans intervention manuelle
- Une seule visite sur site pour tous vos plans : toiture, façades, coupes, plans de masse
- Idéal quand les plans d'origine sont perdus ou obsolètes
- Accès aux zones difficiles sans échafaudage ni nacelle grâce au drone
- Données réutilisables pour d'autres usages : archviz, jumeau numérique, inspection
Cas d'usage
Pour quels projets et quels professionnels ?
Ce service s'adresse à tous les professionnels qui ont besoin de plans fiables d'un bâtiment ou terrain existant.
- Architectes et bureaux d'études
- Obtenez une base de travail fiable pour vos projets de rénovation, d'extension ou de réhabilitation. Les plans sont livrés en DWG, compatibles AutoCAD, ArchiCAD et Revit. En savoir plus sur nos solutions pour architectes et bureaux d'études.
- Géomètres et topographes
- Complétez vos relevés terrestres avec des données aériennes pour les zones en hauteur ou difficiles d'accès. Le nuage de points est livré géoréférencé et compatible avec vos outils SIG.
- Maîtres d'ouvrage et promoteurs
- Disposez de plans à jour pour les dossiers de permis, les études de faisabilité ou les consultations d'entreprises. Découvrez nos solutions pour promoteurs.
- Artisans et entreprises du bâtiment
- Couvreurs, charpentiers, façadiers : obtenez les cotes et surfaces dont vous avez besoin pour vos devis et commandes de matériaux, sans retourner sur site.
- Patrimoine et monuments historiques
- Documentez des édifices classés ou remarquables avec des plans fidèles à l'existant. La numérisation 3D patrimoniale capture les détails architecturaux que le relevé manuel ne peut pas saisir.
Voir un exemple : Plans de la villa à Cavalaire.
Formats et compatibilité
Des fichiers compatibles avec vos outils
Nous livrons dans les formats standards de l'industrie pour une intégration directe dans votre flux de travail.
Plans vectorisés — DWG, DXF, PDF
Intégration directe dans AutoCAD, ArchiCAD, Revit et tout logiciel de DAO compatible.
Orthophotographies — TIFF, PNG, JPEG
Support de vectorisation, documentation visuelle et communication de projet. En savoir plus sur l'orthophotographie.
Nuage de points — E57, LAS, LAZ, PLY
Exploitation dans les logiciels de DAO, BIM et SIG. Base pour la vectorisation autonome.
Modèle numérique de terrain — GeoTIFF, OBJ
Topographie, études de volumes, courbes de niveau et analyses altimétriques.
Les tarifs
Combien coûtent des plans 2D depuis un scan 3D ?
Le tarif dépend de la surface à couvrir, du nombre de plans demandés et du niveau de vectorisation souhaité.
| Prestation | Tarif à partir de | Inclus |
|---|---|---|
Livraison du nuage de points calibré seul Acquisition + traitement + nuage géoréférencé | 850 € HT | Acquisition + traitement + nuage géoréférencé |
Plans 2D vectorisés (jusqu'à 5 plans) Acquisition + traitement + vectorisation + export DWG/PDF | 1 400 € HT | Acquisition + traitement + vectorisation + export DWG/PDF |
Plan supplémentaire Coupe, élévation ou plan de masse additionnel | 120 € HT / plan | Coupe, élévation ou plan de masse additionnel |
La prestation inclut le déplacement (dans un rayon de 30 km autour de Draguignan), l'acquisition sur site, le traitement des données et la livraison des fichiers.
Tarifs indicatifs susceptibles d'évoluer selon la complexité du projet.
FAQ
FAQ Plans 2D depuis scan 3D
Tout savoir sur la production de plans 2D à partir de numérisations 3D : précision, formats, délais et processus.
- Quelle est la précision des plans obtenus à partir d'un scan 3D ?
- Nos relevés offrent une précision de l'ordre du centimètre, suffisante pour la grande majorité des usages architecturaux et techniques. Cette précision dépend des conditions d'acquisition (distance au sujet, densité de points, qualité du GPS) et est systématiquement documentée dans la note méthodologique livrée avec vos fichiers.
- Puis-je recevoir le nuage de points pour vectoriser moi-même ?
- Oui. Si vous préférez réaliser la vectorisation dans votre propre logiciel de DAO (AutoCAD, ArchiCAD, Revit, etc.), nous vous livrons le nuage de points dense, colorisé et géoréférencé dans le format de votre choix (E57, LAS, LAZ, PLY). Vous bénéficiez ainsi d'une base de travail précise et complète.
- Quels formats de fichiers livrez-vous ?
- Les plans vectorisés sont livrés en DWG (compatible AutoCAD, ArchiCAD, Revit) et/ou PDF. Les nuages de points sont disponibles en E57, LAS, LAZ ou PLY. Les orthophotographies en TIFF, PNG ou JPEG haute résolution. Nous nous adaptons à votre flux de travail.
- Combien de temps faut-il pour recevoir mes plans ?
- Pour un bâtiment standard, comptez 3 à 5 jours ouvrés entre l'acquisition sur site et la livraison des fichiers. Ce délai couvre le traitement du nuage de points et, le cas échéant, la vectorisation des plans. Pour des projets complexes ou volumineux, le délai est ajusté et précisé dans le devis.
- Peut-on combiner la production de plans 2D avec d'autres services ?
- Oui, c'est même l'un des avantages de notre approche. Le même jeu de données 3D peut servir à produire vos plans 2D, mais aussi un jumeau numérique navigable sur le web, une inspection visuelle 3D ou une base pour un projet d'archviz. Cela évite de multiplier les interventions sur site.
Tous nos services
Découvrez aussi nos autres services
Des solutions complémentaires pour répondre à tous vos besoins.
Scan 3D & Numérisation
Photogrammétrie par drone et scanner laser pour capturer vos sites.
En savoir plus →Inspection visuelle 3D
Naviguez, inspectez et prenez vos mesures dans une maquette 3D photoréaliste et ultra détaillée de votre ouvrage sans vous déplacer ni prendre de risques.
En savoir plus →Relevés 3D
Documentez l'existant avec précision grâce à la photogrammétrie par drone et au scanner laser.
En savoir plus →Jumeau numérique
Créez une réplique numérique complète et pérenne de votre bâtiment.
En savoir plus →Archviz : visualisation architecturale 3D
Valorisez vos projets grâce à une intégration 3D réaliste dans leur environnement réel.
En savoir plus →Visite virtuelle 3D
Créez une visite virtuelle immersive de vos espaces, accessible depuis un simple lien web.
En savoir plus →Simulation d'éclairage
Visualisez l'ambiance lumineuse de vos projets avant installation grâce à la 3D.
En savoir plus →Photos d'architecture & d'immobilier
Valorisez votre projet avec un shooting respectant les codes de la photographie d'architecture.
En savoir plus →